Домокомплекты серии CALIFORNIA
CALIFORNIA 157
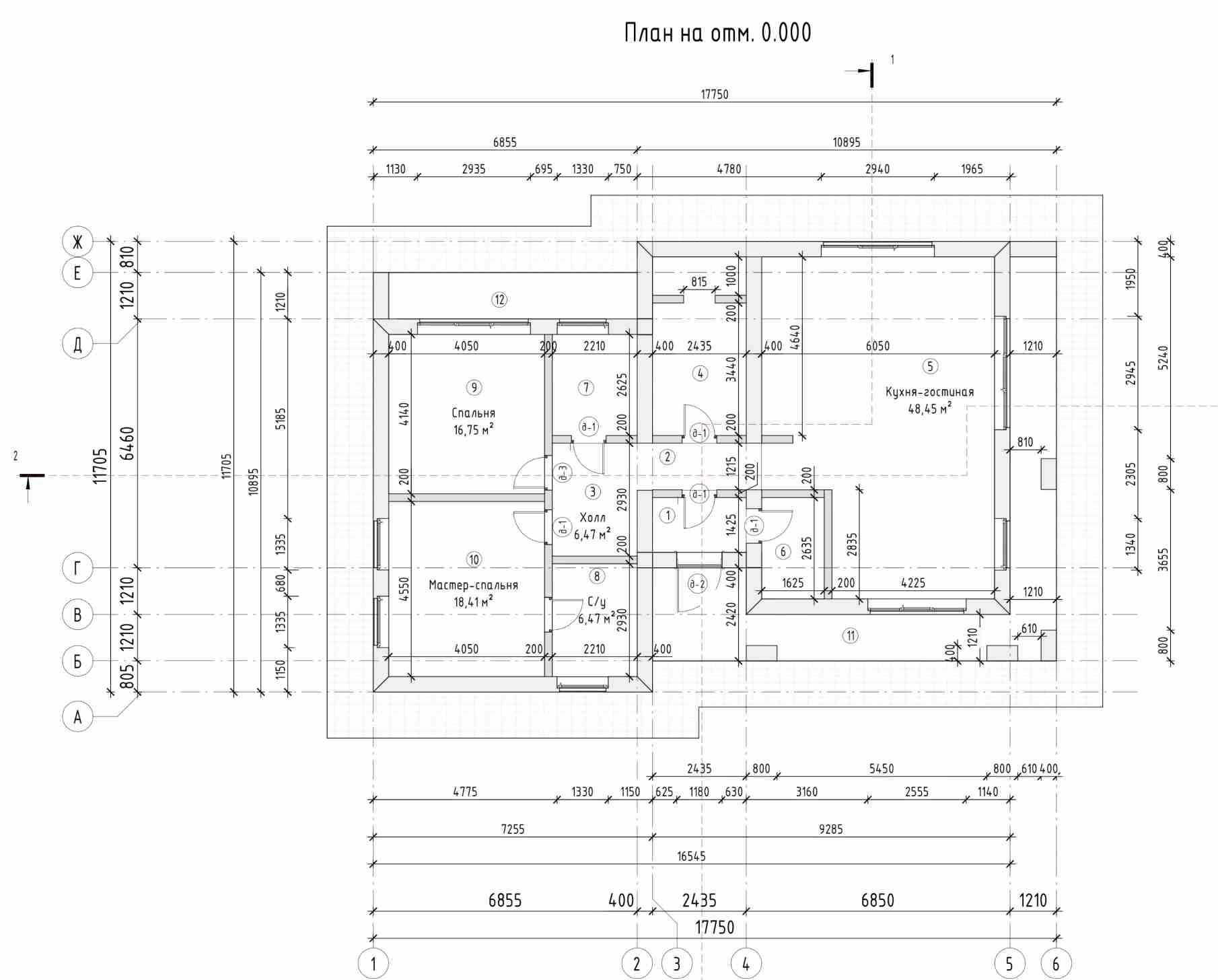
Габариты застройки 13,2×12,4 м.
Площадь застройки 157 м².
Площадь полезная 124,05 м².
СТОИМОСТЬ ДОМОКОМПЛЕКТА 6 389 880 ₽
Стоимость комплектаций
«БАЗОВОЕ СТРОИТЕЛЬСТВО» и «ТЕПЛЫЙ КОНТУР»
рассчитывается индивидуально
в зависимости от региона строительства
Калифорния 157
- Просторная гостиная объединяет столовую и кухню, превращаясь в центр притяжения для всей семьи.
- Две спальни, одна из которых — главная спальня родителей, оборудованы просторными окнами, наполненными солнечным светом.
- Кабинет станет рабочим уголком, а отдельный вход в хозяйственную зону упростит бытовые заботы.
- Прихожая, гардеробная и два санузла обеспечивают порядок и удобство.
Это стильный одноэтажный дом общей площадью 157 м², созданный специально для семей с одним или двумя детьми. Современный дизайн, свободное пространство и продуманные детали делают его идеальным вариантом для тех, кто хочет жить комфортно и спокойно.
Грамотная планировка
Интерьер разработан с учетом максимального удобства:
Возможность заказа проекта «без отделки» позволяет владельцу создать уникальное пространство, соответствующее личным представлениям о красоте и комфорте.
Пространство для жизни и отдыха
Одним из главных достоинств дома является компактная открытая терраса с навесом, расположенная в непосредственной близости от гостиной. Это идеальное место для семейных ужинов, барбекю или занятий спортом.
Панорамные окна в пол пропускают много дневного света внутрь, зрительно расширяя пространство и делая пребывание в доме особенно приятным.
Безупречная внешность и интеграция в ландшафт
Минималистичная архитектура с плавными линиями и натуральными материалами фасада (светлые тона и дерево) выгодно подчеркнет достоинства выбранного участка и гармонично впишется в любой природный ландшафт.
Плоская кровля соответствует современной концепции проектирования и поддерживает целостный внешний вид дома.








